Select Estates

Jávea · Costa Blanca North

REF. SE-26952 / Villa · New Build

1.749.000€

Jávea · Costa Blanca North

REF. SE-26952 / Villa · New Build

Overview

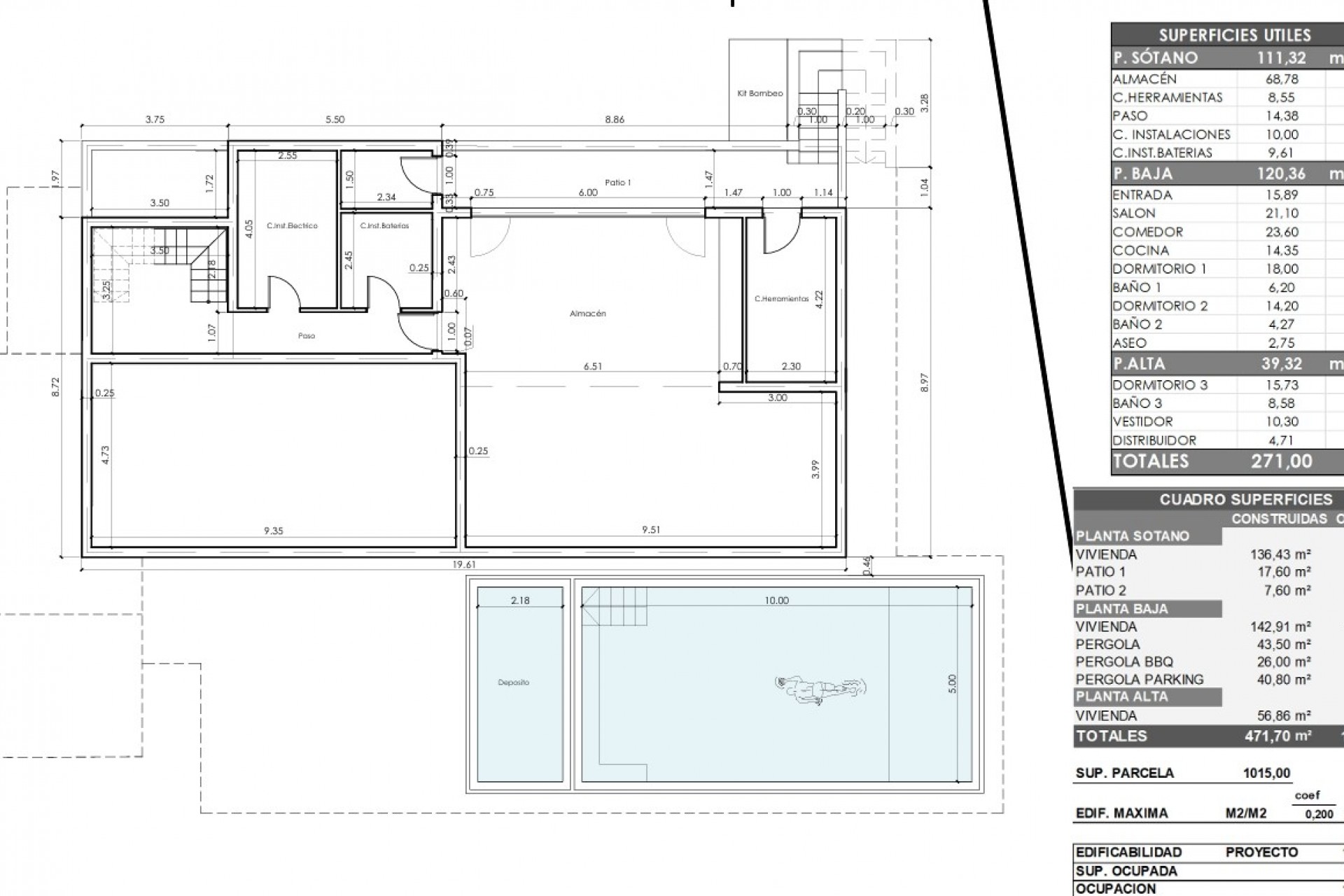
  • Built House icon 471 m2
  • Plot Plot icon 1.015m2
  • Bedrooms Bed icon 3
  • Bathrooms Bath icon 3
  • Pool Pool icon Private
Bedrooms: 3
Bathrooms: 3
Built: 471m2
Plot: 1.015m2
Pool: Private
Automatic irrigation
Garden
Outdoor shower
Heat pump
Floor heating
Storage
Substructure
Paneles fotovoltaicos
Parking space
Pre-heating system swimming pool
Ventilation system
Air conditioning
Balcony
Pool
Terrace
Double glass
Automatic gate

Location

Description

Luxury, sustainable villa for sale in La Guardia Park, Jávea This modern and spacious newly built villa is located on a flat plot in the exclusive La Guardia Park urbanisation. The property is built according to the principles of Styro Stone: the concrete core is insulated on both the inside and outside, ensuring exceptional airtightness. As a result, temperatures remain nearly identical throughout the home, and the double ventilation system guarantees optimal living comfort. In addition, the villa is equipped with an aerothermal system for heating and cooling via underfloor heating, as well as for domestic hot water. A solar energy system with 18 solar panels and 20 kW of energy storage ensures almost zero energy consumption and contributes to achieving an A++ energy rating. The villa is distributed over three floors. You enter the home on the ground floor through a spacious, bright hall where the guest toilet is also located. Further down the corridor you will find two double bedrooms, each with its own bathroom. The hallway leads to the generous living-dining room with a modern open kitchen with cooking island, fully equipped with Bosch appliances. The staircase, bathed in natural light thanks to the large windows, takes you to the upper floor. Here you will find the master bedroom with a luxurious ensuite bathroom with shower, bathtub and double washbasin, as well as a dressing room and a large private terrace. The villa additionally features a 180 m2 basement, a large multifunctional space with endless possibilities: a home cinema, bar, gym, meeting room, extra guest bedroom, playroom or even a complete guest apartment with kitchen and bathroom, ready to be designed according to your wishes. Outside you will find a beautiful 13 × 5 metre Bali-style saltwater pool with sunbathing area and pre-installation for heating. The surrounding 212 m2 terrace is equipped with two Iroko-wood pergolas, and thanks to the south-facing orientation you can enjoy the sun here all year round. The garden was designed by landscape architect Jan van Eijle, winner of the first environmental award for sustainable companies by the municipality of Jávea. He created a lush Mediterranean garden with centuries-old olive trees, various fruit trees, a wide variety of herbs for cooking enthusiasts and a large recreation area with natural grass, with complete privacy as a top priority. This villa is ideal for anyone looking for a sustainable home with high living comfort and low monthly costs. An excellent investment for the future. La Guardia Park is just a stone’s throw from some of Jávea’s most beautiful beaches, such as Playa del Portitxol and Playa de la Granadella, and close to the most popular leisure and entertainment areas. Several restaurants and sports facilities are also within walking distance. Jávea’s sandy beach is less than a 15-minute drive away. Do not hesitate anylonger and request your viewing now! Quality brochure available upon request.

Make an enquiry

Responsable del tratamiento: Select Estates Altea SL, Finalidad del tratamiento: Gestión y control de los servicios ofrecidos a través de la página Web de Servicios inmobiliarios, Envío de información a traves de newsletter y otros, Legitimación: Por consentimiento, Destinatarios: No se cederan los datos, salvo para elaborar contabilidad, Derechos de las personas interesadas: Acceder, rectificar y suprimir los datos, solicitar la portabilidad de los mismos, oponerse altratamiento y solicitar la limitación de éste, Procedencia de los datos: El Propio interesado, Información Adicional: Puede consultarse la información adicional y detallada sobre protección de datos Aquí.

Similar Properties

WhatsApp