Select Estates

Benissa · Costa Blanca Nord

REF. BG-32136 / Villa · Wiederverkauf

2.250.000€

Benissa · Costa Blanca Nord

REF. BG-32136 / Villa · Wiederverkauf

Übersicht

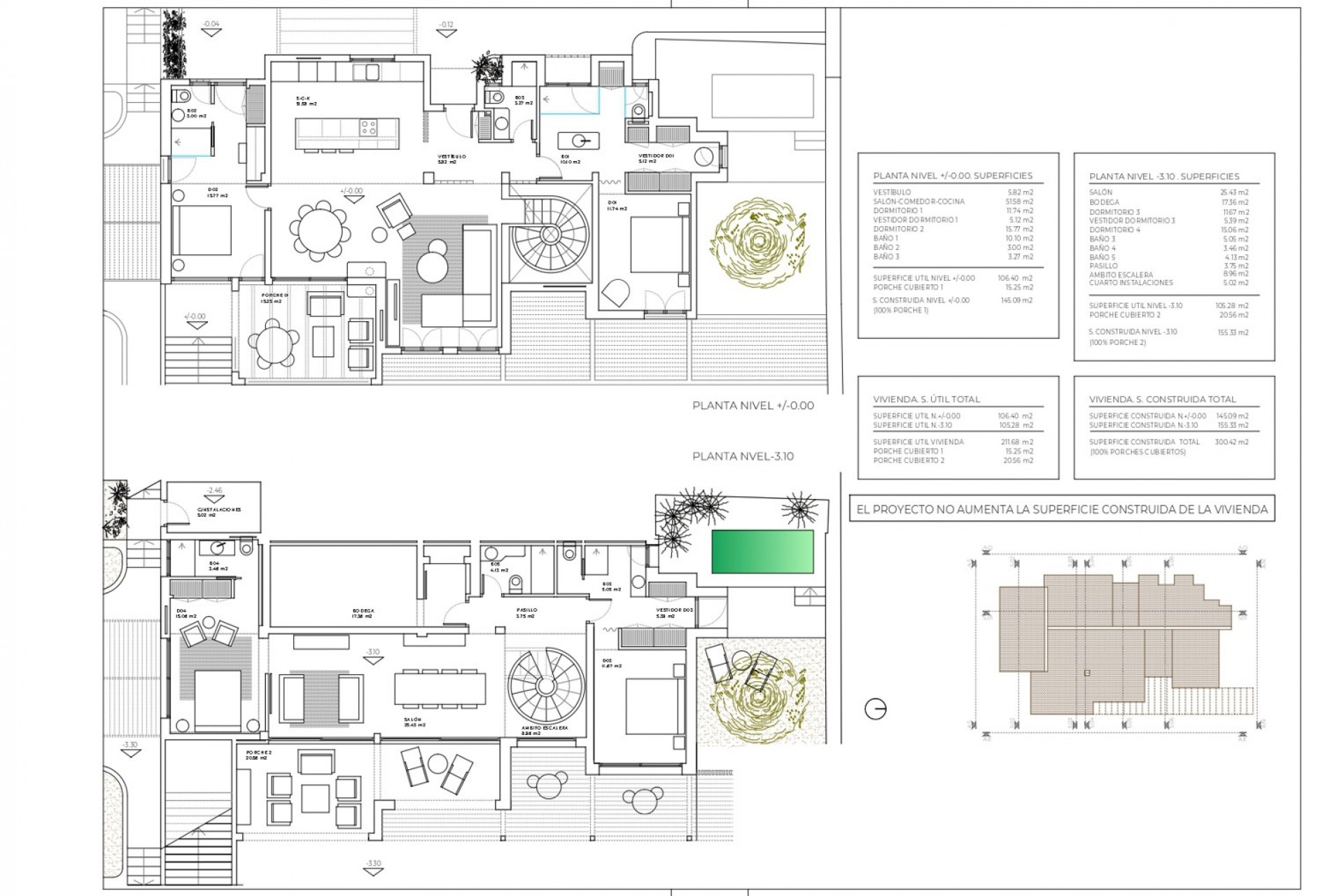
  • Gebaut House icon 300 m2
  • Grundstück Plot icon 1.070m2
  • Schlafzimmer Bed icon 4
  • Das Badezimmer Bath icon 6
  • Schwimmbad Pool icon Privat
Schlafzimmer: 4
Das Badezimmer: 6
Gebaut: 300m2
Grundstück: 1.070m2
Schwimmbad: Privat
Klimaanlage
Grill
Balkon
Heizung
Zentralheizung
Garage
Schwimmbad
Terrasse
Doppelverglasung
Whirlpool

Ort

Beschreibung

Gelegen in der begehrten Wohngegend La Fustera, Benissa Costa, nur kurze Entfernung vom Strand, Restaurants und lokalen Einrichtungen, stellt dieses Projekt eine einzigartige Gelegenheit dar, ein hochwertiges mediterranes Zuhause an einem der begehrtesten Standorte der Costa Blanca Nord zu schaffen. Dies ist ein umfassendes Renovierungsprojekt, bereit zum Start, konzipiert, um eine bestehende Immobilie in eine raffinierte und zeitgenössische Residenz zu verwandeln. Das Konzept kombiniert modernen Komfort mit zeitloser mediterraner Architektur, mit Fokus auf natürliche Materialien, warme Farbtöne und großzügige Wohnräume. Das Projekt umfasst vier Schlafzimmer und vier Badezimmer sowie zwei Gästetoiletten. Die Aufteilung ist so gestaltet, dass sie sowohl Funktionalität als auch Flexibilität bietet, mit zwei unabhängigen Wohnbereichen, verteilt auf die obere und untere Etage. Im Herzen der Immobilie schafft eine offene Küche und Essbereich einen zentralen Raum für das tägliche Leben und für geselliges Beisammensein. Eine markante architektonische Treppe verbindet beide Ebenen und dient als zentrales Gestaltungselement der Villa. Die Außenbereiche sind darauf ausgelegt, den mediterranen Lebensstil zu maximieren, mit großzügigen Terrassen, angelegten Gärten und einem Swimmingpool. Zusätzlich verfügt die Suite im Erdgeschoss über einen privaten Wellnessbereich im Außenbereich, einschließlich eines Whirlpool-ähnlichen Tauchbeckens innerhalb eines privaten Gartenbereichs. Die Immobilie verfügt außerdem über Park- und Pergolabereiche sowie mehrere Außenbereiche, die für Entspannung und Privatsphäre gestaltet sind und eine nahtlose Verbindung zwischen Innen- und Außenbereichen schaffen. Gelegen in einer ruhigen Wohnumgebung in Meeresnähe, bietet dieses Projekt eine hervorragende Gelegenheit, eine charaktervolle Immobilie mit Privatsphäre und hohem Designwert zu entwickeln.

Make an enquiry

Responsable del tratamiento: Select Estates Altea SL, Finalidad del tratamiento: Gestión y control de los servicios ofrecidos a través de la página Web de Servicios inmobiliarios, Envío de información a traves de newsletter y otros, Legitimación: Por consentimiento, Destinatarios: No se cederan los datos, salvo para elaborar contabilidad, Derechos de las personas interesadas: Acceder, rectificar y suprimir los datos, solicitar la portabilidad de los mismos, oponerse altratamiento y solicitar la limitación de éste, Procedencia de los datos: El Propio interesado, Información Adicional: Puede consultarse la información adicional y detallada sobre protección de datos Aquí.

Ähnliche Eigenschaften

WhatsApp